Tiny House on Wheels

$65,000

The exterior of a tiny house on wheels with wooden siding and a metal skirt.

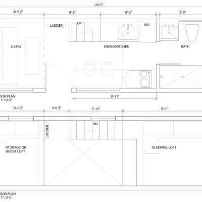
Ready for your finishing touches: this tiny house shell features brand-new double-pane windows, exterior siding, 2 inches of exterior insulation, wiring roughed in, interior insulation, and an Intello Smart Membrane on the interior. This custom home is designed to withstand Northeast winters comfortably and efficiently!

The home will be ready for pick up on May 1, 2026. 

If you're looking for a turnkey option, we can finish the interior. 

Find out more

Please contact us to purchase or find out more.

Send Inquiry